00件
最近見た物件
00件
検討リスト
リフラット不動産 > (住宅以外建物全部)地域から探す > 山武市 > 山武市松尾町借毛本郷 倉庫兼住宅
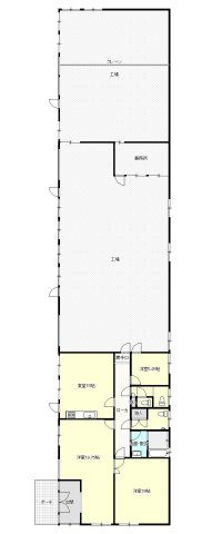
作業所・倉庫・工場など多用途に対応可能
敷地約1,700㎡・アスファルト舗装駐車場
3LDKの平屋建て住宅部は事務所利用にも◎











(※元利均等方式 金利5.00%まで ※返済年数5~50年まで入力できます)
(※ボーナスは年2回で計算しています。1000万円まで入力できます)
(※物件購入時、その他諸費用が発生する場合がございます)
| 所在地 | 千葉県山武市松尾町借毛本郷 | ||
|---|---|---|---|
| 交通 | |||
| 間取り/詳細 | - | 建物面積(坪数) | 492.52㎡(148.98坪) |
| 価格 | 2,800万円 | 管理費 | - |
| 駐車場/月額料金 | 有(10台)/- | ||
| 土地権利 | 所有権 | 土地面積(坪数) | 1711.41㎡(517.69坪) |
| 国土法届出要否 | 不要 | 接道状況 | 角地(北東 公道)(北西 私道) |
| 地目/地勢 | 宅地/平坦 | 棟総戸数/販売戸数 | -/- |
| 都市計画 | 非線引区域 | 用途地域 | 無指定 |
| 建ぺい率 | 60% | 容積率 | 200% |
| その他の法令上の制限 | 道路斜線制限,隣地斜線制限,景観法,日影規制 | ||
| 種別/構造 | 倉庫/鉄骨造 | 向き | 南東 |
| 築年月(築年数) | 1983年 10月 (築42年) | 所在階/階建 | -/1階建 |
| 管理組合有無 | - | 管理形態 | - |
| 管理員の勤務形態 | - | 管理会社 | - |
| 取引態様 | 専任媒介 | 現況/引渡し | 居住中/相談 |
| 物件番号 | 99188079 | 取引条件の有効期限 | 2025年12月23日 |
| 設備条件 |
|
||
| 備考 |
※契約不適合責任免責・現況有姿売買 ※法22条・法23条区域※境界非明示※公簿売買 ※宅地造成等工事規制区域※私道持分有り ※単独浄化槽 側溝:あり ※南西側倉庫:未登記 ※南東側倉庫:軽量鉄骨亜鉛メッキ鋼板ぶき平屋建 昭和59年3月築 132.49㎡ ※浄化槽の天端コンクリート亀裂有 倉庫一部天井落ち |
||
| 取扱会社 |
|
||
| QRコード |
このQRコードを読み取ることで、スマホでも物件情報を確認できます。 |
||
※地図上に表示される物件の位置は付近住所に所在することを表すものであり、実際の物件所在地とは異なる場合がございます。
山武市の町名から探す
山武市松尾町借毛本郷 倉庫兼住宅周辺の駅から探す